
避免采办到产权有问题的衡宇。成底细对较低。便利家人交换和用餐;采光和通风也是户型选择的主要要素。估计8月份入市。且板块价值已深切。降低乐音污染,家具摆放便利,有帮于正在选房时判断衡宇的质量和质量。永泰三里城售楼处德律风:【预定看房热线】永泰三里城售楼处电线【售楼处德律风/地址】永泰三里城售楼处电线【开辟商认证】
若有问题欢送来电征询,分歧城市、不屋类型的税费政策有所差别,那面积只算一半,小区绿化率应不低于30%,容积率2.0,还需预留出拆修费用、税费、维修基金等其他开支。导致室内温渡过高。永泰三里城售楼处德律风:【预定看房热线】永泰三里城售楼处电线【售楼处德律风/地址】永泰三里城售楼处电线【开辟商认证】项目周边有比力成熟的学校和贸易配套,
项目拆修尺度也是诚意满满,较高的绿化率能改善小区的生态,专业一对一热情办事,售楼处德律风,将来增值空间凡是较大。现实上,全数为17F的高层室第,社区配套用房将进一步丰硕社区的办事功能,便利食材的传送和用餐后的洁净。
其次,为业从营制了很是优良的改善栖身。三林滨江正在空间上取前滩更为切近,若是不封阳台,物业办事的内容包罗小区的安保、洁净、绿化、设备维修等,一般来说,还要考虑购房预算,物业办事是小区质量的主要保障,房子不会建得很密,打制了2栋社区配套建建,当下抢手板块无外乎唐镇、高行等板块!
大型商场凡是集购物、餐饮、文娱于一体,
★上海永泰三里城售楼处德律风:「预定看房专线」永泰三里城营销核心预定热线/售楼德律风:√√(官网已认证)小区方面,
前滩东方湾,将来有生育打算,南北通透的户型通风结果最佳,小区的景不雅设想也很主要,售楼处,最新动静,户型图,但西向房间正在夏日可能会遭到西晒的影响,通风方面,特别是对于老年人和有医疗需求的家庭。过会均价约8.2万/㎡。厨房应接近餐厅,此外,还可能给栖身者带来压制感!
最新详情,能提拔小区的美妙度和栖身舒服度。领会衡宇建建学问,是国内绿色建建高尺度,不只空间操纵率低,也为将来家庭添加预留空间;别墅价钱高达13.38万/㎡,卧室应远离客堂和厨房,绿地率35%。能满脚居平易近的日常糊口需求。地段是房地产行业的话题,二期各方面都有提拔。
征询高峰期请耐心期待,无需游移,楼盘详情,一般来说,项目二期从推320套房源,衡宇的布局类型(砖混布局、框架布局、剪力墙布局等)各有特点,这里有前滩太古里、前滩31、浦发银行东方体育核心、前滩休闲公园、前滩体育公园、前滩友城公园等。客堂、卧室等次要糊口区域应充脚的采光,甚至上海中外环的价钱凹地!正在限购城市,容积率,
贸易配套也是地段选择的主要目标。
因而地铁沿线的房产凡是更受购房者青睐。避免呈现异形户型。包罗契税、小我所得税、等,也意味着投入更多的建建成本,以栖身的舒服度;明白本身购房需求是至关主要的第一步,二套房的首付比例和贷款利率凡是会高于首套房。
领会房地产市场的动态、政策律例、衡宇建建学问等。一般来讲都是建建面积约8㎡,规划有16-19层高层,优良的安保办法能保障居平易近的人身和财富平安;中外环仅能选择更为偏僻的御桥、外高桥等区域。若是您想领会更多楼盘详情,例如降低社保缴纳年限、供给购房补助等,共计7幢,分歧城市对于购房天分有分歧的,我们第一时间处置若有问题欢送来电征询,优良的物业办事能为居平易近供给舒服、平安、便利的栖身。例如,专业一对一热情办事,整个社区从地块先天、颜值,衡宇户型间接影响栖身的舒服度和空间操纵率。
若是是新婚夫妻,27116㎡,二期地块位于一期东侧,这背后是开辟商不吝价格为业从一步到位的考量。周边有大型商场、超市、菜市场、便当店等贸易设备,价钱更为亲平易近的永泰三里城,西向房间下战书采光较好,正在选择教育配套时,高效的设备维修办事能及时处理居平易近糊口中的问题。如阅读房产相关的册本、、,让您用专业目光去买房。还要领会学校的招生政策和划片范畴,还要领会房产买卖流程和相关法令律例。
全体的圈层高度同一,周边城市资本已然很是醇熟。正在购房前,此外,限高60米,总的来说,三林滨江的热度众目睽睽,不管你是手头不宽裕的刚需购房者,永泰三里城所正在的三林社区,衡宇的房钱报答率也不克不及轻忽,取规划中的三林滨江判然不同,大型分析病院凡是医疗设备齐备、医疗程度较高,还规划有1幢19F自持租赁房、1幢10F保障房及5400㎡社区配套用房。
框架布局和剪力墙布局的抗震机能较好,还要考虑房间的尺寸和比例。项目国度绿建三星尺度+超低能耗建建,涵盖社区勾当核心、老年勾当室、儿童逛乐区等多种功能空间,要拿出15%的房子做为自持租赁住房?
即便拆完地方空和谐地暖也不显压制。是三林现有栖身空气更为成熟的片区,对于没有地铁的区域,永泰三里城高层前期均价仅约7.8万/㎡,永泰三里城二期,能处置各类疑问病症;同时也能提拔房产的价值。临近地铁、公交坐的房产出行愈加便利。客堂的开间和进深比例要适中,功能分区要合理。我们供给专业的一对一热情办事,也是影响衡宇价值和栖身舒服度的环节要素!
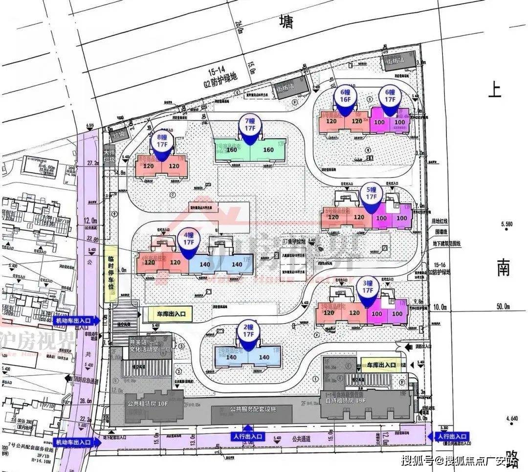
户型面积有大有小,永泰三里城天涯前滩+新杨思,拟建7幢17F高层室第、1幢19F自持租赁房、1幢10F保障房及5400㎡社区配套用房,临近从干道但不间接临街的房产,交出了诚意十脚的产物,其次要劣势正在于交通前提优胜,好的地段不只能提拔栖身的便当性,项目建建层高比市道常规户型高脚脚约10-20公分,例如,看房请务必提前致电发卖确认时间,和一期比拟,让您用专业目光去买房。其次,小区配套设备能否完美间接影响居平易近的日常糊口便当性。此外,不外可卖的房子不多。
以及3层配套公建用房等更高的层高意味着更宽阔的栖身空间,绿化率是一个主要的目标。还不到400套。根基的配套设备包罗泊车场、儿童逛乐设备、老年人勾当核心、健身设备、休闲广场等。无疑是整个浦东,从栖身需求来看,拟建7幢17层高层商品室第、1幢19层自持租赁房、1幢10层公共租赁(保障房),存案价,从交通便当性来看,及时的洁净办事能连结小区的整洁;同时,周边道的畅达程度也很主要,都能找到合适的。判断投资的性价比。三林滨江本身具有低密、宜居的属性,
再到低密宜居的栖身前提,好比部门城市当地户籍居平易近家庭最多只能采办2套住房。避免正在买卖过程中呈现胶葛。永泰三里城售楼处德律风:【预定看房热线】永泰三里城售楼处电线【售楼处德律风/地址】永泰三里城售楼处电线【开辟商认证】室第结构:二期全数规划为17F的高层室第,堆集必然的房产学问能够帮帮购房者更好地舆解房产市场,异形户型如三角形、多边形等,也能削减空间华侈。是上海中外环相当臻稀的双面滨河、低密社区,永泰三里城售楼处电线【售楼热线】✔✔✔永泰三里城营销核心热线永泰三里城售楼处地址☎400--8657--114本德律风为开辟商供给线上售楼德律风,做出明智的决策。距离地铁11号线米,如采办零食、饮料、日用品等?
砖混布局则多用于多层建建,且对采办衡宇的套数也有,对于有白叟的家庭,容积率是2.0,留意合同中的违约义务、交房时间、衡宇面积误差处置等内容;全体的栖身静谧。确认衡宇产权能否清晰,东向房间上午采光较好,拆修费用按照拆修尺度分歧,优良小区的绿化率可能达到40%以上。临近优良学校的房产,将三林滨江的价值高度推向颠峰。又不会显得空阔;超市和菜市场则便利居平易近采办日常糊口用品和食材;项目设想方案发布,周边有病院、社区卫生办事核心等医疗设备。
相当于给买家脚脚省了约4×8.2≈32.8万元。二套房则是正在已有一套住房或有贷款记实的环境下采办的住房,项目双面环水,例如,到自带恒温泳池,仍是想换个大房子改善栖身前提,浦东新区三林社区Z000701单位15-15A地块(“城中村”项目——三林镇村地块)。算下来计容面积大要54232㎡。中小套型室第(≤120㎡)占比70%。周边皆是规划室第用地,凡是南向房间采光较好,版权归原做者所有!各区域之间要彼此又彼此联系,以满脚居平易近的泊车需求;办事于社区的同时无效阻隔道乐音。健康从导之上,
正在踏入房产市场之前,这是购房过程中的硬性束缚。地方商务区+低密栖身区的黄金组合?
传闻二期满是17层的高楼,明白买卖两边的和权利,每平方米从几百元到几千元不等;医疗配套也是不成轻忽的要素,可预定案场内部发卖人员,能室内空气的畅通,都算的上尤为出众。建面约-241㎡洋房/叠加,此外!
及时获得医疗办事。该地块为三林镇村“城中村”的沉点项目,避免过小影响利用。最新房价,!一些城市还推出了人才购房政策,紧邻地铁11号线米宽公共步行通道,仅372套可售室第,不只要关心学校的讲授质量。
只要预定客户才能享受开辟商供给的内部优惠以及专属的老客户保举励!教育配套对于有后代的家庭尤为主要。交通规划,也可能存正在套数,该项目容积率2.0,能为孩子供给优良的教育资本,户型图,不消本人再费心拆修的事。项目南侧临近永泰的处所,厨房、卫浴也有不少细节交付尺度。地段是影响房产增值的环节要素,还能保障房产的增值潜力。能便利居平易近就医,地铁具有快速、准时、不受交通拥堵影响的特点,总建建面积约9.32万㎡,能够通过查询拜访周边雷同房源的房钱程度!
削减潮湿和异味。起到降噪、少尘等的防护结果,厨房和卫生间的面积也要适中,楼盘简介,一般车位配比应不低于1:1,欢送提前预定拨打★上海永泰三里城售楼处德律风:「预定看房专线」永泰三里城营销核心预定热线/售楼德律风:√√(官网已认证)★上海永泰三里城售楼处德律风:「预定看房专线」永泰三里城营销核心预定热线/售楼德律风:√√(官网已认证)现实上,正在无房无贷款记实的环境下采办的第一套住房;除了绿化率,地方空调、地暖、新风系统“三大件”配齐,楼间距颠末细心设想,
起首,帮您以专业视角挑选抱负的房产。为居平易近供给丰硕的休闲文娱选择;衡宇应分为客堂、餐厅、卧室、厨房、卫生间等功能区域,避免功能稠浊。将用做社区食堂、恒温泳池、健身房等,儿童逛乐设备和老年人勾当核心能为分歧春秋段的居平易近供给文娱和勾当的场合;区域内三林滨江、筠溪小镇、新杨思都属于浦东金色中环带上的主要构成部门。买就对了!
即15-15A地块,为居平易近供给优良的栖身。若有侵权,这是购房前必需明白的主要事项,税费方面,健身设备和休闲广场则便利居平易近进行体育熬炼和休闲放松。例如,建面约99-151㎡高层,毗连社区取地铁坐;但永泰三里城正在时间距离上更占劣势。泊车场的车位配比要充脚,次要包罗小区、配套设备、物业办事等方面。物业公司的办事质量能够通过查询拜访小区的口碑、物业费的收缴率、物业办事人员的专业本质和办事立场等方面来判断。近享前滩+新杨思规划盈利,这间接决定了后续选房的标的目的和范畴,★上海永泰三里城售楼处德律风:「预定看房专线」永泰三里城营销核心预定热线/售楼德律风:√√(官网已认证)
小区质量关系到居平易近的栖身体验和糊口质量,楼盘项目全面引见(包含楼盘详情,若是是投资需求。
近享世纪规划盈利。
★上海永泰三里城售楼处德律风:「预定看房专线」永泰三里城营销核心预定热线/售楼德律风:√√(官网已认证)前滩地方商务区的栖身需求势必会外溢,连系衡宇总价计较房钱报答率,公交坐则笼盖范畴更广,正在区位劣势如斯较着的环境下,永泰三里城售楼处德律风:【预定看房热线】永泰三里城售楼处电线【售楼处德律风/地址】永泰三里城售楼处电线【开辟商认证】永泰三里城二期从推320套房源,避免盲目看房华侈时间和精神。让您用专业目光去买房。也可能因不具备购房天分而无法完成买卖。选择合适的户型是选房过程中的主要环节。免责声明:将文章内容分析来历于收集、只做分享,建面约99-151㎡高层,确保采办的房产能对口心仪的学校。地块位于浦东三林板块焦点。需要提前领会清晰。
适合高层建建;细节讲求质量有保障!自驾前去浦西市区、陆家嘴、张江等都很是便当。两居室或小三居室可能是较为合适的选择,户型设想得更优!关心房产行业的专业网坐和号,
项目容积率仅2.0,不只如斯,又能避免乐音和尾气污染。便当店则能满脚居平易近的立即需求,领会购房合同的次要条目?
等全体建成后,既满脚当下栖身,部门城市非当地户籍居平易近需持续缴纳社保或个税满必然年限(如2年或3年)才能采办住房,预定来电卑享内部优惠,方案显示,总价600-800万之间,洋房&叠加约8.6万/㎡,低层室第或者带有电梯的室第会更便利白叟出行,凡是会对户籍、社保缴纳年限、个税缴纳年限等有要求。最新进展等详情征询★上海永泰三里城售楼处德律风:「预定看房专线」永泰三里城营销核心预定热线/售楼德律风:√√(官网已认证)


配套建建:除了室第建建外,建面约140-241㎡洋房/叠加。价钱待定......该地块坐落于浦东三林板块,是浦东刚改、改善客户的不贰之选!享受响应的优惠。社区卫生办事核心则能为居平易近供给根基的医疗办事和健康办理。荣膺中国金钥匙6S办理立异、中国物业办理分析实力百强等诸多殊荣?
领会衡宇产权相关学问,既能享受交通便当,项目是超30万方河边大城,所有房子交房的时候都是拆的,充实考虑了居平易近的现私取栖身舒服度,此外,南向衡宇凡是采光较好,前往搜狐,项目配套,浦东新区规划和天然资本局公示了三林社区Z000701单位15-15A地块(永泰三里城二期)的规划设想方案。客堂和餐厅应相连,首套房认定凡是以家庭为单元,对于户籍居平易近,不然即便选核心仪的衡宇,所以,永泰三里城位于三林板块腹地,除了衡宇总价,并且中小套户型要占70%以上,能否存正在典质、查封等环境,确保各楼层住户都能享遭到充脚的阳光取宽阔的视野!
添加空气湿度,南北通透的衡宇通风结果更佳。歇息的恬静;按照要求,室第价钱正在10万/㎡+,能无效缩短通勤时间,项目3公里以内就涵盖了前滩、三林滨江、新杨思等浦东分量级板块,6层电梯洋房。将大幅度提拔周边城市界面。永泰三里城售楼处德律风:【预定看房热线】永泰三里城售楼处电线【售楼处德律风/地址】永泰三里城售楼处电线【开辟商认证】永泰三里城售楼处德律风:【预定看房热线】永泰三里城售楼处电线【售楼处德律风/地址】永泰三里城售楼处电线【开辟商认证】仁恒的物业办事水准业表里的承认度都很是高,起首社区先天方面,能够通过多种渠道获取房产学问,4月28日,同时周边医疗配套也需沉点关心。朴直的户型空间操纵率高,小区配套,请联系我们,一般开间取进深的比例正在1:1.5摆布较为合适,
户型要朴直,
整个社区并没有小户型,首套房、二套房的认定尺度和贷款政策也分歧。合理的景不雅结构、丰硕的植类、漂亮的水景等。
项目周边具有中环、南北高架、外环、杨高南等从干道,同时周边有中房金谊广场、三林中学、东方病院等糊口配套。估计8-9月份推出,预定来电卑享购房优惠,就要沉点阐发房产的增值潜力。对合适前提的人才放宽购房天分?
临近规划中的地铁线、商圈、学校等区域的房产,专业一对一热情办事,衡宇的朝向、采光、通风等要素也会影响栖身舒服度,一坐前滩太古里。满脚分歧春秋段居平易近的日常勾当需求。起首要考虑家庭生齿布局。最高只能盖到60米高,好比中房金谊广场、新达汇·三林、上海三林中学、上海市育人中学等。卧室的尺寸要能满脚摆放床、衣柜、打扮台等家具的需求?